
UPDATED:
Key Details
Property Type Single Family Home
Sub Type Single Family Residence
Listing Status Active
Purchase Type For Sale
Square Footage 1,879 sqft
Price per Sqft $176
Subdivision Holstein Crossing
MLS Listing ID 2107188
Style Ranch,Traditional
Bedrooms 4
Full Baths 2
Half Baths 1
Construction Status Under Construction
HOA Fees $1,130/ann
HOA Y/N Yes
Year Built 2025
Annual Tax Amount $375
Lot Dimensions 50 x 120
Property Sub-Type Single Family Residence
Source realMLS (Northeast Florida Multiple Listing Service)
Property Description
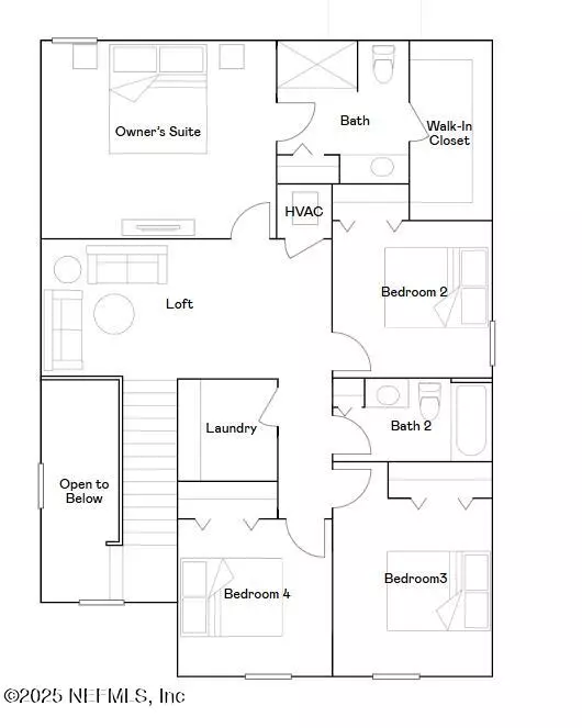
Lennar Homes - Columbus F-floor plan: 4 bedrooms, 2.5 bathrooms, and a 2-car garage. Everything's Included features: 36'' white recessed panel cabinetry with quartz countertops, stainless steel appliances including range, dishwasher, microwave, and refrigerator, wood-inspired luxury vinyl plank flooring, Honeywell Z-Wave smart thermostat, and energy-efficient water heater.
Green Cove Springs combines small-town charm with modern conveniences. Nestled along the St. Johns River, it offers waterfront parks, boating, and the renowned spring fed pool. Residents enjoy top-rated schools, historic character, and a growing dining scene, all within easy reach of Jacksonville, St. Augustine, and major highways.
Limited one-year builder warranty.
(Conditions may apply)
Location
State FL
County Clay
Community Holstein Crossing
Area 163-Lake Asbury Area
Direction Take 17 North to Russell Rd, turn left, then turn left on Sandridge Rd then right on Agriculture Ave then a right on Grand Finale.
Interior
Interior Features Breakfast Bar, Entrance Foyer, Kitchen Island, Pantry, Primary Bathroom - Shower No Tub, Split Bedrooms, Walk-In Closet(s)
Heating Central, Electric, Heat Pump
Cooling Central Air, Electric
Flooring Carpet, Vinyl
Furnishings Unfurnished
Laundry Electric Dryer Hookup, Washer Hookup
Exterior
Parking Features Attached, Garage, Garage Door Opener
Garage Spaces 2.0
Utilities Available Cable Available, Electricity Connected, Sewer Connected, Water Connected
Amenities Available Playground
Roof Type Shingle
Porch Covered, Front Porch, Rear Porch
Total Parking Spaces 2
Garage Yes
Private Pool No
Building
Lot Description Sprinklers In Front, Sprinklers In Rear
Sewer Public Sewer
Water Public
Architectural Style Ranch, Traditional
Structure Type Fiber Cement,Frame
New Construction Yes
Construction Status Under Construction
Others
Senior Community No
Tax ID 23052501009900862
Security Features Smoke Detector(s)
Acceptable Financing Cash, Conventional, FHA, VA Loan
Listing Terms Cash, Conventional, FHA, VA Loan
GET MORE INFORMATION




